欢迎来到 833体育赛事直播 官网! 专业的液力偶合器生产厂家 咨询热线: 18023376687

咨询热线:

18023376687

全面解析:YCL液力齿轮箱与传统YOX液力耦合器的性能差异

浏览量:254 类型:行业资讯 日期:2025-09-28 17:23:07 分享:

在工业传动领域,YOX系列液力耦合器因其具备软启动、过载保护等基础柔性传动特性,被广泛应用于矿山、电力、港口等重载设备中。

传动设备示意图

然而,随着装备制造业对传动效率、空间布局、智能化控制等要求不断提高,传统YOX液偶的局限性也逐渐凸显。

今天,我们要介绍的是由世界杯买球app贴吧 推出的YCL液力齿轮箱,它不仅在功能上继承了液力传动的柔性优势,更在结构、效率、集成度上实现全面突破。下面我们就从几个关键维度,对比YCL液力齿轮箱与传统YOX液力耦合器的性能差异。

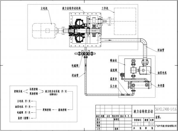
一、结构集成度:从"分体组合"到"一体融合"的跨越

传统YOX液力耦合器:通常采用"电机 + 液力耦合器 + 减速机"的分体式组合。这种方案结构松散、占地面积大、安装找正复杂,传动链长导致能量损失环节多。

YCL液力齿轮箱:创造性地将斯诺克买球软件有哪些 (耦合器)与齿轮减速机构集成于同一封闭箱体内。这种一体化设计,节省了近40%的安装空间,同时减少了外部连接环节,提高了系统刚性,安装和维护更为便捷。

YCL液力齿轮箱是"传动总成",而"YOX液偶+减速机"是"传动部件组合"。前者是系统化解决方案,后者是功能组件的拼合。

二、传动效率:从"基础传递"到"高效输出"的升级

YOX液力耦合器:其核心是泵轮和涡轮,通过液体动能传递扭矩,存在固有的滑差损失。在额定工况下,效率通常在96%-97%左右,且负载越低,效率也相应降低。

YCL液力齿轮箱:在继承了液力传动优点的同时,其后端集成了高效率的齿轮减速机构。通过优化设计和精密制造,其传动效率最高可达97%-98.5%。这意味着在同等输入功率下,YCL能输出更多的有效功,长期运行下来,节能效益相当可观。

YCL液力齿轮箱通过一体化设计,减少了分体结构的中间传递损失,实现了整体传动效率的提升,为企业降低了运营成本。

传动效率对比图

三、振动与噪声控制:从"平稳"到"宁静"的优化

YOX液力耦合器:能有效隔离电机与负载的扭振,实现平稳启动。但其分体式结构,尤其是安装对中不良时,可能成为新的振动源。

YCL液力齿轮箱:一体化结构从根本上避免了因对中不良引起的振动。封闭的箱体结构不仅保护了内部机构,还起到了优异的隔音降噪效果,工作噪音显著低于分体式传动组。

YCL液力齿轮箱提供了更优的工作环境,尤其符合现代工业对低噪声、绿色环保的严格要求。

四、适用场景与综合价值:从"通用选项"到"优选方案"的转变

YOX液力耦合器:凭借其成本优势和简单结构,在对空间、效率要求不极致的通用场合,依然是经济实用的选择。

YCL液力齿轮箱:特别适用于对空间紧凑、传动效率、环境噪音、安装便利性及智能化控制有更高要求的场景。例如,在新建或改造的现代化生产线、空间受限的船舶动力系统、要求高可靠性的矿山带式输送机等领域,YCL的综合优势更能转化为长期价值。


传统YOX液力耦合器作为第一代柔性传动的代表,为工业发展立下了汗马功劳。而YCL液力齿轮箱的出现,则代表了液力传动技术向高效化、集成化、智能化演进的新方向。它并非对前者的简单替代,而是一次面向未来的"价值升级"。

在竞争日益激烈的市场环境中,选择一款技术领先、全生命周期成本更低的传动设备,无疑是提升企业核心竞争力的关键。YCL液力齿轮箱正以其"刚柔并济"的独特魅力,成为驱动产业升级的新一代传动利器。


百度搜索"世界杯买球app贴吧 "或拨打咨询热线:13377667631、18023376687,我们可以为您提供专业的斯诺克买球软件有哪些 选型建议及产品手册!

30多年斯诺克买球软件有哪些 研发经验-为您的技术产品增效30% | 热线:18023376687

30多年斯诺克买球软件有哪些
研发经验-为您的技术产品增效30% 关闭
Baidu
map